
Tras la denuncia reciente de los ecologistas sobre la tramitación de un macrocamping en Polop que afectará a un área de protección de las AVES , hemos estudiado los macro proyectos que hay en trámite para construir estos campamentos de cabañas en Polop de la Marina. Lejos de existir sólo uno, como defiende algún político local, en realidad hay dos grandes complejos en marcha: El Glamping de la partida Bacorero en más de 83.000 m2 y el de El Matet, en la partida de Alamasere, con más de 280.000m2, recurrido por Acciò Ecologista Agro
El “glamping” para turistas de alto nivel adquisitivo, proyecto de 2024 en la partida de Bacorero
Este “glamping” se enfocaría a un turismo de alto nivel, de ahí su combinación de las palabras Glamour y Camping, es decir, es un camping con glamour, en el que se puede dormir temporalmente en medio de la naturaleza y al aire libre sin dejar de lado las comodidades o el confort de un alojamiento de lujo. Así es como se define en el proyecto.
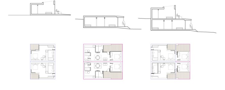
En este camping habrá cabañas prefabricadas construidas con materiales naturales, piscinas y áreas comunes.
Las 97 cabañas serán además diferentes.
26 cabañas con terrazas cubiertas, junto a una piscina longitudinal.
36 cabañas con un patio particular
10 cabañas con forma de prisma con dos alturas tipo “torres”.
15 cabañas con forma de campana y altura variable
10 cabañas con 2 tamaños, con piscina particular de bajo calado.
Y 8 plataformas preparadas para la ubicación ocasional de tiendas de campaña.
También tendrá una zona de Servicios Comunes Tipo “Cruz”
El proyecto data de junio de 2024, promovida por Glamp In Polop S.L.

El megacamping de la partida Alamasere
Este otro camping fue tumbado hace años por el Consell, pero ahora ha reactivado su tramitación tras formular cambios a instancias de gestiones previas del Servicio de Infraestructura verde y paisaje, Servicio Territorial de Medio Ambiente y Consorcio de Aguas de la Marina Baixa. En total ocupará 280.345 m2 reflejados en Catastro.
Aquí se instalarán cabañas y “villas”.

El principal objetivo de los promotores de este proyecto el de crear un complejo turístico tipo Resort con zonas comunes, club social, etc.
En el nuevo proyecto se calcula una inversión total de 10.5 millones para lo que se propone abonar un canon de 21.0421,00 Euros durante 30 años, si bien contempla la posibilidad de que el Ayuntamiento lo reduzca en un 50% alegando que generará 15 puestos de trabajo.

Autor: Raquel López
Descubre más desde @POLOPyVALLEplaza
Suscríbete y recibe las últimas entradas en tu correo electrónico.






